В чем же особенность новых квартир в новом доме по адресу Энергетиков, 4?
1. Умные планировки с рациональным использованием жилого пространства.
Сейчас всем покупателям важно, чтобы квартира имела оптимальную планировку, которая была бы полезна каждым квадратным метром для новоселов.
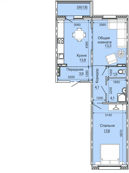
К примеру, в доме на Энергетиков, 4 появились 2-комнатные квартиры 54 "квадрата".
Елена Владимировна Греб,
заместитель генерального директора по экономике и финансам ИСК "СОЮЗ":
Такая планировка максимально удобна для проживания и содержит минимум ненужных метров. Таким образом, мы предлагаем максимально рациональные планировки. Это жилье без лишних метров, с удобными комнатами, кухнями, ванными, гардеробными, позволяющими на достаточно небольших площадях разместить все необходимое и комфортно жить.
"Сегодня мы при разработке квартирографии в жилом комплексе "Времена года" стараемся отойти от типовых планировок и максимально разнообразить выбор квартир", – отмечает Елена Владимировна.
2. Квартиры с большими кухнями для больших семей.
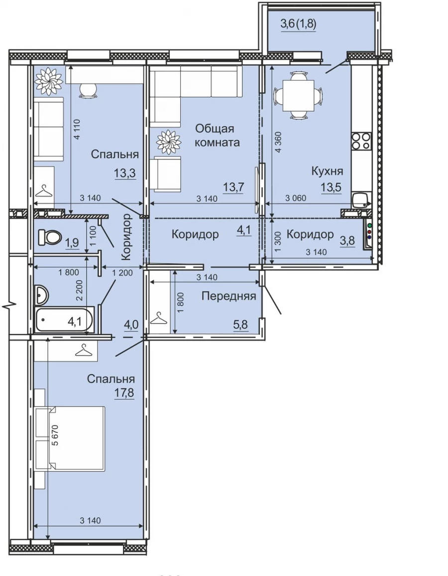
Основной особенностью новых квартир в доме на Энергетиков, 4 явилась большая кухня, которую можно превратить в полноценную гостиную. Причем размер кухни может быть сопоставим с площадью комнаты. Допустим, площадь кухни-гостиной составляет восемнадцать квадратных метров, жилой комнаты – семнадцать "квадратов". В результате кухня-гостиная становится полноценной комнатой. Специалисты инвестиционно-строительной компании "Союз" позволяют просторную кухню использовать как столовую-гостиную, то за счет этого "двушка" с большой кухней бережливому покупателю может служить аналогом традиционной "трешки". На изображении 2-комнатная квартира 60,7 кв. м.
3. Удобный балкон или лоджия.
Сегодня балкон или лоджия – место для отдыха и релаксации. Там можно расположить пару кресел и столик. Витражные лоджии в инвестиционно-строительной компании "Союз" успели набрать огромную популярность среди клиентов.
Елена Владимировна Греб,
заместитель генерального директора по экономике и финансам ИСК "СОЮЗ":
Тем самым мы создаем для жителей отдельное жизненное пространство, откуда можно полюбоваться красивыми видами города, выпить чаю или почитать книгу. Все лоджии в наших домах застеклены и спроектированы таким образом, чтобы пропускать максимальное количество дневного света. Там всегда есть место для размещения кондиционера. Они фактически не требуют дополнительного ремонта: выровнен пол, ровные стыки.
4. Евро-планировки, квартиры-студии.
Все большим спросом у покупателей пользуются квартиры-студии.
В таких квартирах кухня объединяется с гостиной, тем самым создавая простор для времяпрепровождения семьи или приема гостей. А в отдельной комнате располагаются спальня с гардеробом. Таким образом, даже 28 или 26 квадратных метров представляются в виде полнофункциональной квартиры.
Такие квартиры в доме на Энергетиков, 4 – это отнюдь не студии в самом привычном для рынка Барнаула понимании, имеющие объединенную зону гостиной и кухни.
5. Неизменная классика!
Но и любителей классических планировочных решений застройщик ИСК "СОЮЗ" не забывает. Предпочтения и вкусы покупателей могут меняться, поэтому в доме на Энергетиков, 4 есть и классические квартиры, уже полюбившиеся рынку недвижимости Барнаула и ставшие своего рода визитной карточкой для застройщика. Все планировки квартир в жилом комплексе "Времена года" тщательно продуманы, и создается такое впечатление, что при проектировании специалисты кропотливо старались не потерять ни одного квадратного метра жилого пространства.
Посетить стройку, узнать наличие квартир вы можете, приехав в наш мобильный офис в жилом комплексе "Времена года"!
Приглашаем в наш мобильный офис на стройке!
Часы работы мобильного офиса в жилом комплексе "Времена года" (ул. Взлетная, 95):
ПН - ПТ 10.00 - 19.00
СБ 10.00 - 15.00
ВС выходной
Телефон (3852) 58-10-58
Информация о ценах действительна на момент публикации. Проектная декларация на сайте: www.isk-soyuz.ru


