Как ранее писал altapress.ru, на пл. Баварина, 8 планируют построить новый жилой комплекс «Барнаул». На месте возведут две башни — «Столица» и «Мира». Дома установят на стилобат — платформу до высоты третьего этажа.
Застройщик «Селфстроит» также собирается построить прогулочную зону и воздушный пирс — лестницу со смотровой площадкой, откуда откроется вид на Обь. От реки людей отделят ограждения с широкими перилами.
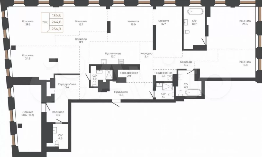
И мы нашли объявление о продаже жилья в будущем жилом комплексе. Будущая семикомнатная квартира площадью 253 кв. метров находится на 26 этаже одной из башен. У каждого дома всего будет по 27 этажей.
Причем эта квартира — самая дорогая на набережной Оби, и стоит 75 млн рублей. Хотя в городе можно найти жилье подороже.
Ниже вы можете посмотреть на планировку квартиры.
Высота потолков — 3,5 метра, санузел совмещенный. Окна выходят на улицу. Купить квартиру можно в ипотеку.


