Комитет муниципального заказа администрации Барнаула в конце марта объявил открытый конкурс. Его участникам предлагается за 149,6 млн рублей возвести до конца 2018 года гараж площадью почти 4,5 тыс. кв. метров по адресу: улица Льва Толстого, 13.
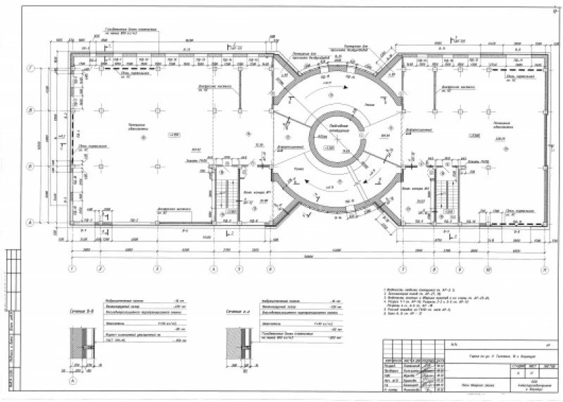
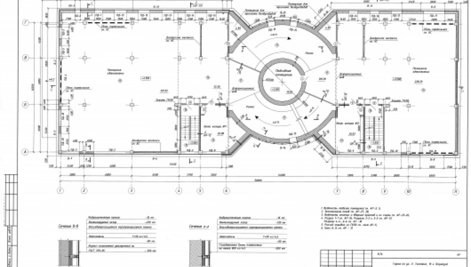
В конкурсной документации указано, что это будет пятиэтажное здание сложной формы с рампой в центральной части. На первом этаже администрация планирует разместить три автобуса, а также помещение диспетчерской, комнату для охраны и персонала, медицинский кабинет, целый комплекс помещений сервисного обслуживания (ремонтный бокс, склад запчастей, комната для зарядки аккумуляторов, комната слесарей, кабинет механика, кабинет начальника). В плане также упоминается тренировочный зал с гардеробом и душевой.
Как следует из конкурсной документации, на втором, третьем, четвертом и пятом этажах предусмотрены места для 70 легковых автомобилей. Также в гараже отведено отдельное помещение для временного хранения отработанных ртутьсодержащих ламп.
Эксперты регионального отделения ОНФ в Алтайском крае сомневаются в том, что администрации действительно стоит заказывать себе такое помещение на фоне дефицита городского бюджета и необходимости исполнения администрацией города судебных решений на сумму 5 млрд руб. (составляет 77,4% от объема расходов, запланированных на решение вопросов местного значения в 2016 г.), пишет сайт организации.
Марина Ермоленко,
сопредседатель регионального отделения ОНФ в Алтайском крае:
Администрации Барнаула следует отложить дорогостоящее строительство гаража до лучших времен и обратить внимание на социальную сферу. К примеру, на подготовку детских оздоровительных лагерей Барнаула в этом году заложено лишь 900 тыс. руб. Если администрация считает, что есть возможность тратить миллионы, так почему бы не пересмотреть бюджетные статьи в пользу детского отдыха.
Как рассказал auto.altapress.ru источник в администрации города, гараж планируют построить не для личного транспорта сотрудников, а для служебного. Сейчас автопарк администрации занимает старое одноэтажное здание на территории "Горзеленхоза" (на ул. Ползунова, 45), однако полностью все машины в него не помещаются, и некоторые приходятся хранить на улице. По мнению собеседника, необходимость в современном вместительном гараже для служебного автопарка действительно имеется.
Официальных комментариев мэрии на момент публикации получить не удалось.


